0%
7(495) 989-63-85
assistant
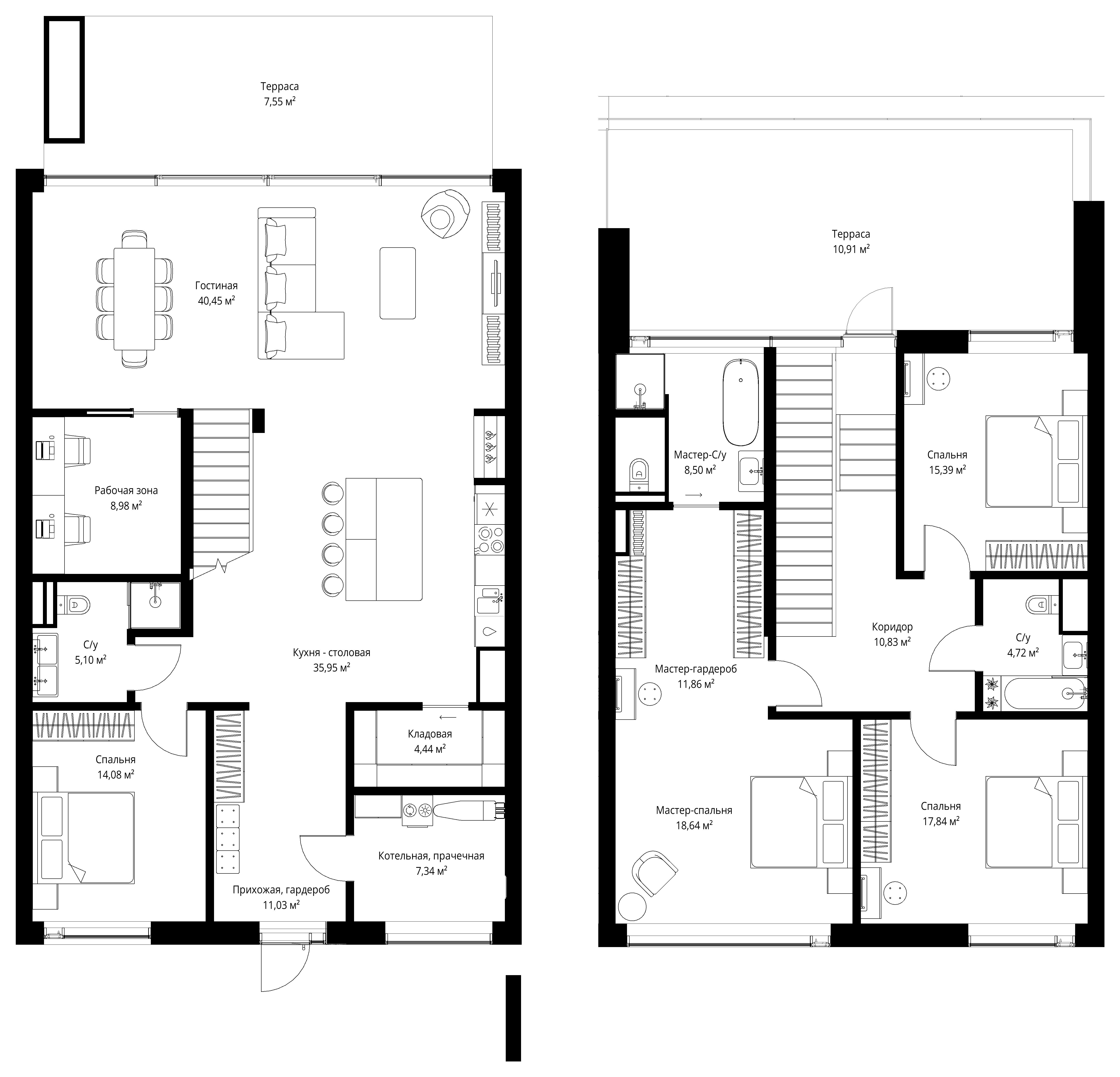
Планировка
План этажа

Таунхаус, 233.61 м²

Срок сдачи: III кв. 2028

62 072 513.1 ₽-15%

73 026 486 ₽

Без отделки
Цена за м²265 710 ₽/м²
Номер лота3.89/89
Высота потолка3.42 м
АртикулЛИК-1-1-ТН-3-1-1-3.89/89
Смотреть все планировки